Floorplans – Mountain Meadow
- 3
- 2.5
- 2,422
- 2
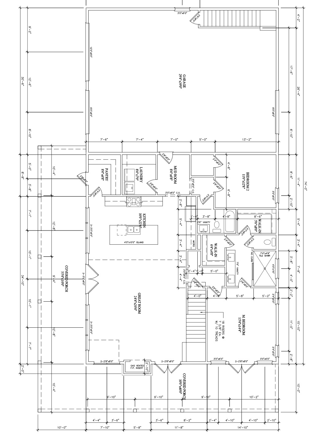
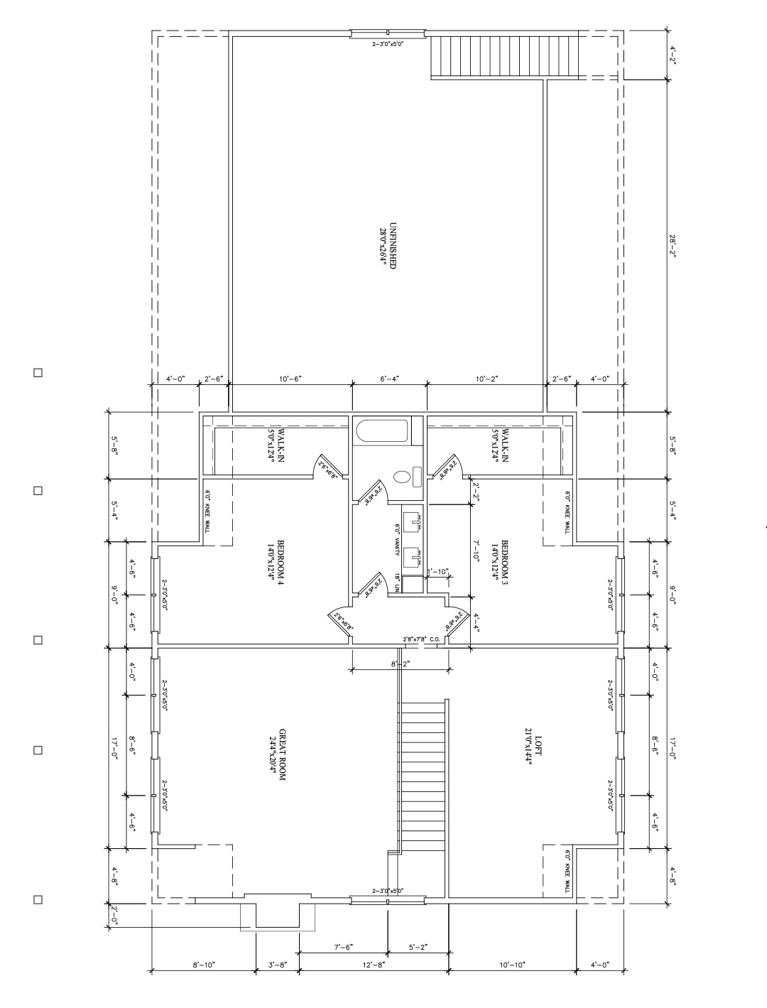
The Mountain Meadow — 3 Bed, 2.5 Bath Mountain-Style Home
Welcome to The Mountain Meadow, a warm, mountain-inspired retreat offering 2,422 sq ft of thoughtful two-story living that blends rustic character with modern comfort. Perfect for families, first-time buyers, and downsizers who crave roomy gathering spaces and relaxed, timeless details, this plan brings dramatic volume, purposeful storage, and plenty of charm to everyday life. An optional two-car garage adapts the home to your site and lifestyle needs.
Step through the covered entry and feel the immediate sense of openness created by 9-foot main-level ceilings and a soaring two-story vaulted great room. A wood-burning fireplace wrapped in shiplap and finished with a rough-cut pine mantle becomes the heart of the home—an inviting focal point for cozy evenings, family game nights, and holiday gatherings. Large windows frame views and fill the interior with natural light, while the open-concept layout flows effortlessly from living to dining to a large kitchen built for real family life.
The kitchen is designed for everyday function and entertaining: quartz countertops, generous prep space, and thoughtful cabinetry make cooking a pleasure, while nearby circulation keeps traffic moving during busy mornings. Ample walk-in closets and a roomy pantry provide practical storage so everything has a place, keeping living spaces calm and organized.
The primary suite on the main level is a private haven, thoughtfully separated from daily activity and appointed with a spa-inspired en-suite featuring a custom tile shower and generous closet space. Upstairs, a spacious loft adds valuable flexible square footage—ideal as a homework hub, media room, play area, or guest retreat—while remaining connected to the home’s lively heart below.
Outdoor living is embraced with a spacious wraparound porch that invites morning coffee, relaxed evenings, and safe play for kids. The optional two-car garage provides secure parking and extra storage for outdoor gear and seasonal items.
Whether you’re building in Bradley County, Hamilton County, Polk County, or McMinn County, The Mountain Meadow offers a perfect blend of mountain charm and modern amenities. With its dramatic vaulted spaces, cozy fireplace, and flexible loft, this plan supports everyday routines and memorable gatherings—creating a home where family life feels comfortable, grounded, and genuine. Come experience The Mountain Meadow and find the easy, welcoming lifestyle you’ve been searching for.

