Floorplans – Hawthorn
- 4
- 3.5
- 2,262
- 2
The Hawthorne — 4 Bed, 3.5 Bath Craftsman Home with Loft
Welcome to The Hawthorne, a timeless Craftsman retreat offering 2,262 sq ft of thoughtfully designed living that blends classic character with modern family-focused amenities. Ideal for growing families, first-time buyers seeking long-term value, or downsizers who want generous space without sacrificing style, this home balances practical everyday function with warm, inviting details that make every day feel special.
The covered front porch invites you inside to an open-concept main level. Framed by 9-foot ceilings and a vaulted great room—an airy hub for family life and entertaining. The large kitchen is a chef’s favorite, boasting quartz countertops, abundant workspace, and a convenient butler’s pantry that keeps serving essentials and small appliances organized and out of sight. The flow from the kitchen to the dining area and into the living space is effortless, creating a natural gathering place for homework, meals, and weekend celebrations.
The main-level primary suite is a serene retreat, thoughtfully designed for privacy and comfort. Enjoy a spa-inspired en-suite with a custom tile shower, a freestanding soaking tub, and large walk-in closets that make dressing and storage a breeze. A dedicated study area near the main living space offer a quiet spot for work or reading without sacrificing family connection.
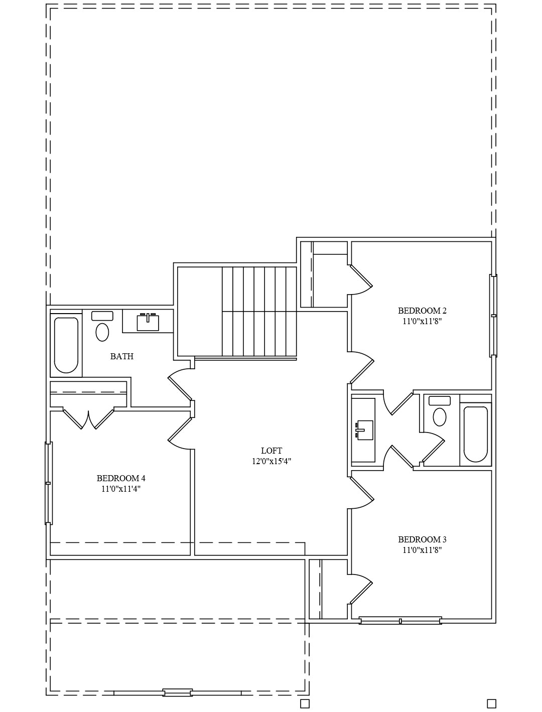
Upstairs, the included loft provides meaningful additional living space—perfect as a playroom, media lounge, homework hub, or flexible guest area. Two well-sized bedrooms and two full bathrooms upstairs ensure comfortable accommodations for children, guests, or multigenerational living, while smart storage solutions and multiple closets throughout the home keep clutter at bay and routines running smoothly.
Outdoor living is effortless with a welcoming front porch and a spacious rear deck—ideal for morning coffee, summer grilling, and safe outdoor play. A two-car garage completes the plan with room for parking and seasonal storage.
Whether you’re exploring neighborhoods in Bradley County, Hamilton County, Polk County, or McMinn County, The Hawthorne stands out for its Craftsman charm, thoughtful flow, and family-ready features. With elegant finishes, generous storage, and an included loft that adds flexible square footage. This plan supports everyday moments and big celebrations alike.
Come experience The Hawthorne—where timeless design meets practical, family-friendly living.

