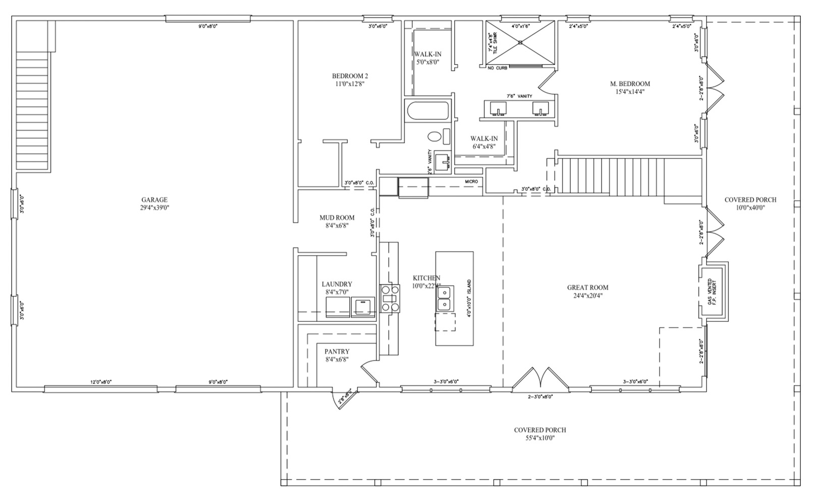
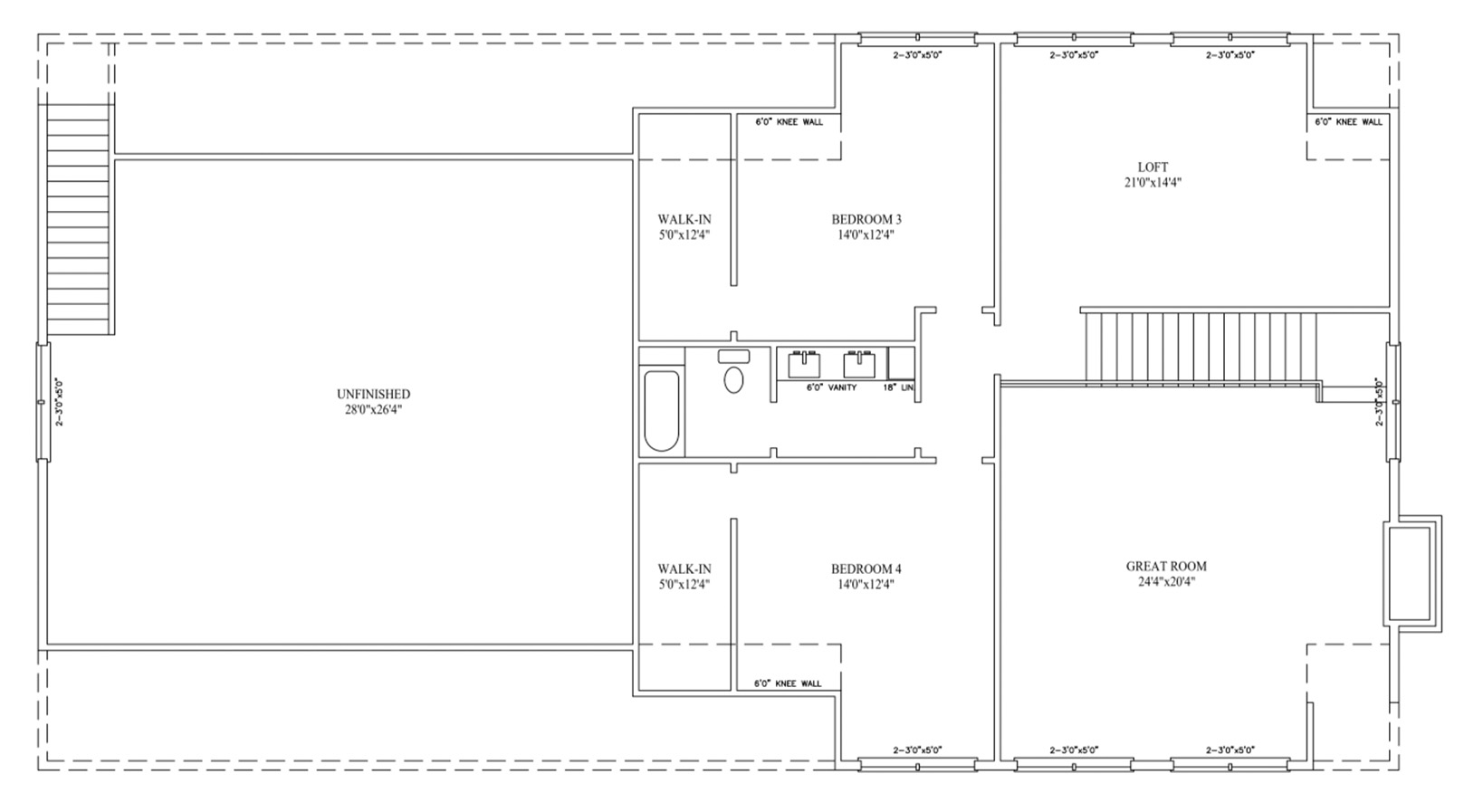
Floorplans – Good Hope
- 4
- 3
- 2,850
- 3
The Goodhope — 4 Bed, 3 Bath Two-Level Barndominium with Wrap-Around Porches
Welcome to The Goodhope: Your Ideal Home in Bradley, Hamilton, Polk, and McMinn Counties
Introducing The Goodhope, an impressive two-level Barndominium that seamlessly blends contemporary design with rustic charm.. Spanning an expansive 2,856 square feet, this remarkable home features four spacious bedrooms and three well-appointed bathrooms, offering ample room for today’s vibrant family lifestyle.
As you step into The Goodhope, you’ll be welcomed by an open floor plan that fosters connection and interaction. The large covered wrap-around porches provide inviting spaces for outdoor living, perfect for enjoying tranquil evenings or entertaining friends and family. A cozy fireplace serves as a welcoming focal point in the living area, enhancing the home’s charm and creating a warm ambiance.
With nine-foot ceilings on the main level and eight-foot ceilings on the second level, The Goodhope is designed to feel both expansive and welcoming. The large kitchen is a chef’s paradise, featuring a massive island that not only provides ample workspace but also serves as a gathering spot for casual meals. The spacious walk-in pantry ensures that all your cooking essentials are easily accessible.
Thoughtful design elements enhance everyday living, including a spacious laundry room and a mudroom bench for easy organization. Large windows throughout the home invite natural light, creating a bright and airy atmosphere.
The Goodhope also features a versatile bonus room, perfect for a playroom, media space, or home office. The built-in dining room bench adds a touch of charm and comfort, creating a cozy setting for family meals.
The luxurious master suite is designed as a personal retreat, complete with a large custom tile shower that offers a spa-like experience every day.
For those seeking their dream home in Bradley County, Hamilton County, Polk County, or McMinn County, The Goodhope is a standout choice that perfectly blends luxury, comfort, and functionality.
Experience the exceptional charm of The Goodhope—your ideal family home awaits!

