Floorplans – Elmwood
- 3
- 2.5
- 1,916
- 2
The Elmwood — 3 Bed, 2.5 Bath Two-Story Home with Optional Bonus Room
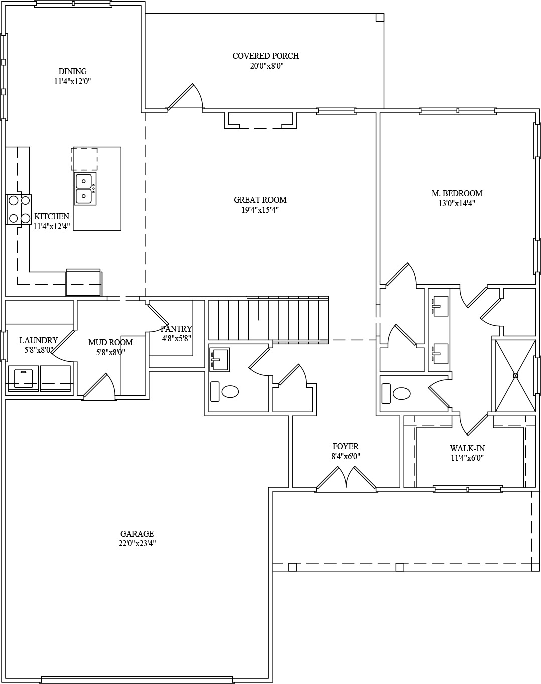
Welcome to The Elmwood, a thoughtfully designed 1,916 sq ft two-story home that blends comfortable family living with inviting architectural details. Ideal for families, first-time buyers, and downsizers. This plan offers an open-concept main level, generous storage, and livable spaces that adapt to changing needs. An optional bonus room gives you flexibility—add it as a cozy media room, home office, playroom, or a fourth bedroom suite to suit your lifestyle.
Step through the covered front porch into a bright, open living area anchored by an electric fireplace framed in shiplap and finished with a rough-cut pine mantle. An instant focal point that lends warmth and character. Nine-foot ceilings on the main level enhance the sense of space and flow seamlessly into a large kitchen designed for everyday life and entertaining. Quartz countertops, a center island, and a massive walk-in pantry create a functional, attractive hub for meal prep and casual gatherings.
Practical conveniences are woven throughout: a roomy mud room off the two-car garage provides a tidy drop zone for backpacks and outdoor gear. While generous walk-in closets in the primary and secondary bedrooms make organization effortless. Upstairs, eight-foot ceilings create comfortable secondary spaces, and the optional bonus room adds valuable square footage when you need it most.
The primary suite is a private retreat with thoughtful finishes and a spa-like en-suite featuring a custom tile shower. Two additional bedrooms and a well-placed half bath complete the upper level layout, offering flexible sleeping and working arrangements for families and guests.
Outdoor living is simple and inviting with covered front and rear porches that expand your entertaining and relaxation options—perfect for morning coffee, evening conversation, or summer barbecues. The two-car garage provides secure parking and extra storage for seasonal items and hobbies.
Whether you’re searching in Bradley County, Hamilton County, Polk County, or McMinn County, The Elmwood delivers a balanced mix of style, function, and future-ready flexibility. It’s an excellent choice for homeowners who want the warmth of shiplap and a pine mantle, the durability of quartz counters, and the everyday convenience of practical storage and an optional bonus room.
Come see how The Elmwood creates comfortable, connected living for your family.

