Floorplans – Driftwood
- 3
- 2.5
- 1,836
- 2
The Driftwood — 3 Bed, 2.5 Bath Two-Story Family Home
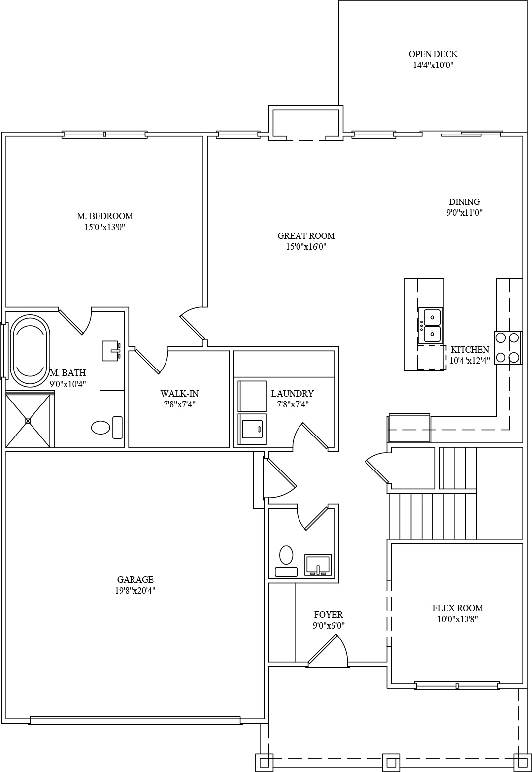
Meet The Driftwood, a thoughtfully composed 1,836 sq ft two-story home that brings together everyday practicality and inviting details for growing families, first-time buyers, and savvy downsizers. With a two-car garage, an open-concept main level, and the convenience of a master suite on the main floor, this plan balances accessible living with room to entertain, relax, and grow. Options for an additional 400 sq ft or attic storage make The Driftwood especially flexible for changing needs.
Step inside to discover 9-foot ceilings on the main level and an open layout that invites natural light to fill the living spaces. A cozy electric fireplace framed in shiplap and topped with a rough-cut pine mantle anchors the great room, creating a warm focal point for family gatherings, quiet evenings, and holiday memories. The seamless flow from living area to dining and kitchen encourages connection—perfect for supervising homework while preparing dinner or hosting weekend get-togethers.
The kitchen is designed for real family life, featuring quartz countertops, a generous work surface, and a walk-in pantry to keep pantry staples and small appliances organized and out of sight. Large windows throughout the home bring the outdoors in, while thoughtful storage solutions like walk-in closets make everyday organization easy and efficient.
The main-level primary suite is a quiet retreat with convenient access and a spa-inspired bath featuring a custom tile shower—an elegant touch that elevates daily routines. Upstairs, the 8-foot ceilings create comfortable secondary spaces for bedrooms, an office, or playroom, while two additional bedrooms and a well-placed half bath provide flexible accommodation for kids, guests, or a home workspace.
Outdoor living is seamless with a spacious rear deck that expands your entertaining and relaxation options—ideal for morning coffee, evening barbecues, or a safe space for children to play. The two-car garage completes the plan with secure parking and room for seasonal storage.
Whether you’re exploring homes in Bradley County, Hamilton County, Polk County, or McMinn County, The Driftwood offers a thoughtful combination of style, function, and future-ready flexibility. From the shiplap fireplace and quartz counters to the master-on-main layout and attic option, this home is built for family life—comfortable, organized, and easy to love. Come see how The Driftwood fits your life today and adapts for tomorrow.

