Floorplans – Dearfield
- 3
- 2
- 1,600
- 2
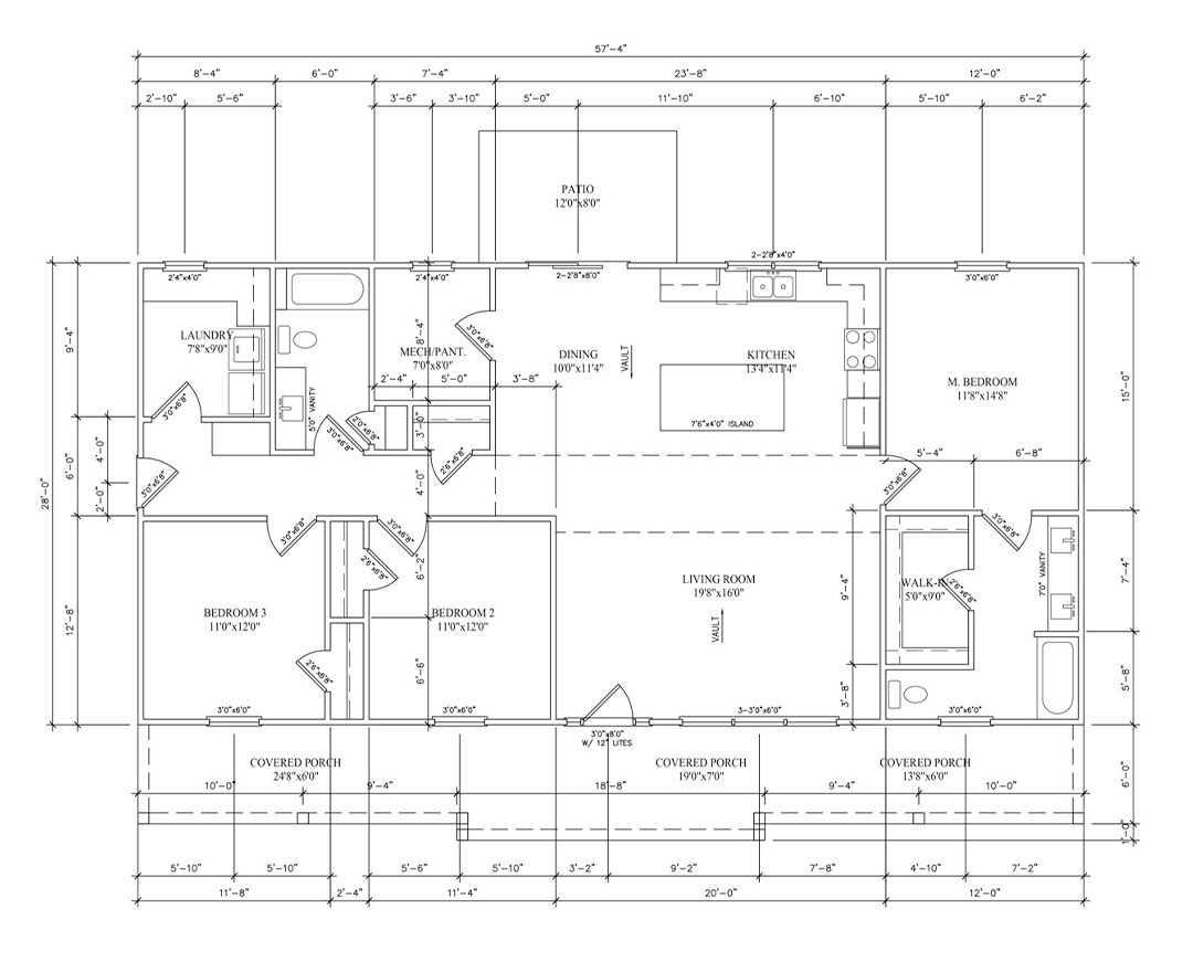
The Dearfield — 3 Bed, 2 Bath Barndominium
Welcome to The Dearfield – a striking 1,600 sq ft single-level barndominium that marries open, modern living with rustic character—perfect for families, first-time buyers, and downsizers who want style, function, and low-maintenance comfort. With a dramatic vaulted living-room ceiling and thoughtful details throughout, this plan brings bright, connected spaces and practical storage together for everyday life and special gatherings.
Step inside to discover 9-foot ceilings on the main level and a vaulted great room that floods the home with natural light that creates an airy, welcoming heart for family time and entertaining. The open-concept layout creates effortless flow between living, dining, and kitchen, so conversation and activity move naturally from meal prep to the table to cozy evenings together. Large windows frame outdoor views and make the interior feel bright and inviting in every season.
The kitchen is designed for real family life, offering quartz countertops, generous workspace, and a roomy walk-in pantry to keep staples and small appliances organized and out of sight. Ample counter space and intuitive storage make weekday meals and weekend gatherings easy, while the functional layout allows space during busy routines.
The primary suite is a calm retreat with a tray ceiling that adds architectural interest and a spa-like en-suite featuring a custom tile shower. A spacious walk-in closet provides neat, accessible storage for clothing and linens. Two additional bedrooms offer flexible space for children, guests, or a home office, each designed with practical closet space to keep rooms tidy and functional.
Outdoor living shines with a welcoming front porch for morning coffee and a rear deck that extends your entertaining footprint—perfect for barbecues, outdoor play, or watching the sunset. For homeowners who need vehicle storage, there’s an option to add a two-car garage for secure parking and extra room for tools and seasonal gear.
Thoughtful finishes like quartz countertops and the custom tile shower elevate everyday routines while generous volume and smart storage keep the home feeling organized. Whether you’re building in Bradley County, Hamilton County, Polk County, or McMinn County, The Dearfield offers a unique blend of rustic charm and modern convenience.
This is an ideal home for families who value open living with practical design.
Come see how The Dearfield makes barn-style living warm, bright, and effortlessly livable.
