Floorplans – Dakota
- 3
- 2.5
- 1,750
- N/A
The Dakota — 3 Bed, 2.5 Bath Two-Story Barndominium (Detached Garage Option)
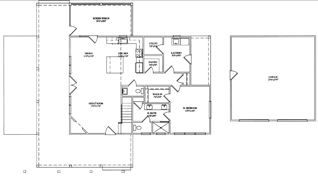
Welcome to The Dakota, a striking 1,750 sq ft two-story Barndominium that pairs open, airy living with durable, modern finishes. This home is an ideal retreat for families, first-time buyers, and downsizers seeking distinctive style and smart function. Thoughtfully designed to celebrate big spaces, The Dakota features soaring living room ceilings and a master-on-main layout that puts everyday comfort and convenience at the forefront.
A detached two-car garage is available as an option for those who prefer separate parking.
Enter through generous wraparound porches that create instant curb appeal and invite morning coffee, neighborly visits, and relaxed outdoor living across multiple vantage points. Step inside and be greeted by a dramatic scale: 9-foot main-level ceilings and an expansive great room with towering volume make entertaining effortless and family time feel grand yet comfortable. The open-concept flow keeps the kitchen, dining, and living areas connected so you can cook, chat, and watch the kids all at once.
The kitchen is a true hub, designed for everyday life and lively gatherings. Quartz countertops, abundant prep space, and a massive walk-in pantry keep meal prep smooth and clutter-free. A spacious layout provides room for casual dining and a center island where family and friends naturally gather. Nearby, a largelaundry room adds real convenience — perfect for busy households managing kids’ activities and seasonal gear.
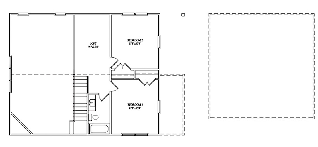
The main-level primary suite is a private sanctuary with generous walk-in closets and a spa-inspired bath featuring a custom tile shower. Two additional bedrooms upstairs offer space for children, guests, or a home office, each with walk-in closets and well proportioned layouts. Thoughtful finishes like the electric fireplace framed in shiplap and a rough-cut pine mantle bring cozy character to the great room and anchor everyday gatherings.
Practical storage make daily routines easier while the wraparound porches and option for a detached garage add lifestyle flexibility. Whether you’re exploring homes in Bradley County, Hamilton County, Polk County, or McMinn County, The Dakota stands out as a memorable, livable plan blending bold architecture with function. Experience a home where generous spaces that meet practical design — large enough for life’s celebrations, cozy enough for everyday moments.

