Floorplans – Benton
- 3
- 2.5
- 2,768
- 3
The Benton — 3 Bed, 2.5 Bath Barndominium with a Massive Garage
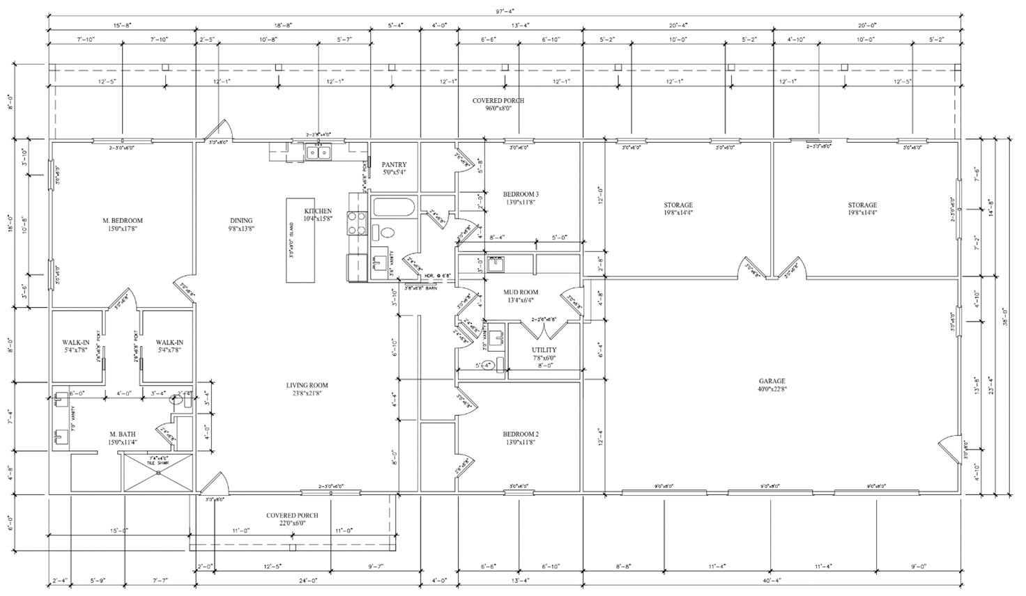
Welcome to The Benton, a commanding 2,768 sq ft single-story barndominium that combines rugged barn-style character with refined, family-friendly living. Designed for homeowners who need generous work and play space without sacrificing warmth and everyday comfort, this plan delivers a main-level primary suite, flexible dedicated spaces—home office and workout gym—and a truly massive garage for toys, projects, or business storage. Thoughtful finishes and purposeful flow make The Benton ideal for families, first-time buyers eyeing long-term value, and downsizers who want room to pursue hobbies.
Step onto the welcoming front porch and into an open-concept great room crowned by a vaulted ceiling that amplifies light and volume. Large windows bring the outdoors in and center family life around an expansive living area perfect for gatherings, movie nights, and holiday traditions. The adjacent kitchen is built for real living: quartz countertops, abundant prep space, and a large footprint let you cook for crowds or prepare weeknight meals with ease. Ample storage and walk-in closets throughout keep daily routines organized and clutter-free.
The main-level primary suite offers a peaceful retreat with generous closet space and a spa-inspired en-suite featuring a custom tile shower—an everyday luxury that supports restful mornings and relaxed evenings. Two additional bedrooms provide comfortable space for kids, guests, or creative use, while the well-placed half bath accommodates visitors and family needs.
What truly sets The Benton apart is its massive garage and purpose-driven rooms. The oversized garage is ideal for RVs, multiple vehicles, workbenches, or a small business footprint. Inside, a dedicated home office supports remote work or study, and a private workout gym provides the convenience of exercising at home without sacrificing living space. These features make The Benton uniquely capable of supporting modern family life and active lifestyles.
Whether you’re building in Bradley County, Hamilton County, Polk County, or McMinn County, The Benton offers a powerful combination of barn-style charm, practical luxury, and flexible space that grows with your life. With high ceilings, durable finishes, and a plan built for both work and leisure, this barndominium invites you to live large—without losing the comfort and warmth of home. Come explore The Benton and imagine everything you can do under one expansive roof.
