Floorplans – Meadow Creek
- 3
- 2.5
- 2,678
- 2
The Meadow Creek — 3 Bed, 2.5 Bath Single-Level Modern Farmhouse
Welcome to The Meadow Creek: Your Ideal Home in Bradley, Hamilton, Polk, and McMinn Counties
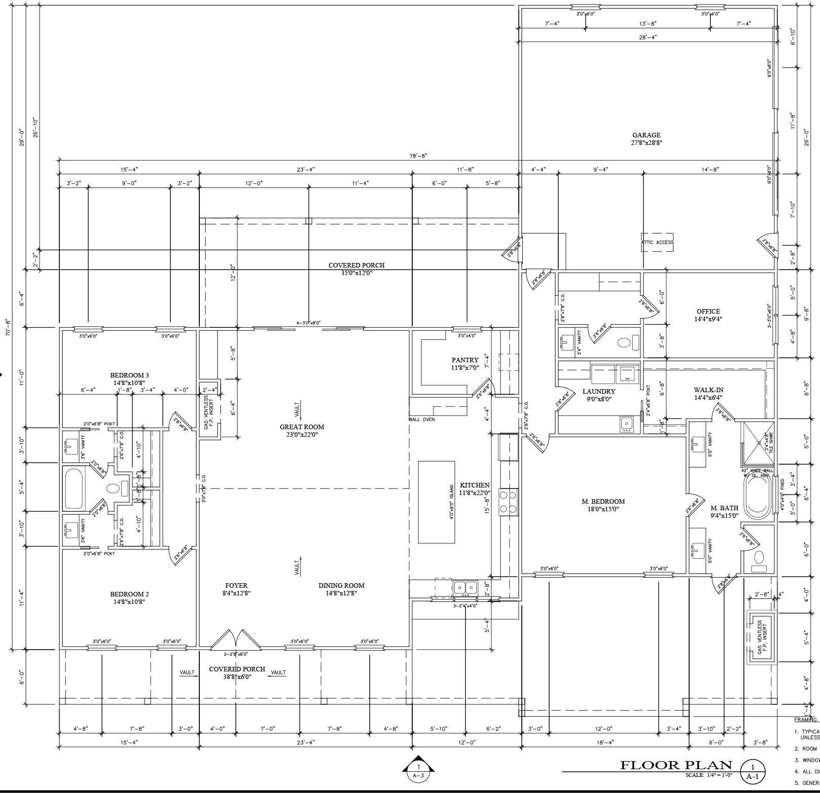
Introducing The Meadow Creek, a stunning single-level modern farmhouse that beautifully balances elegance and functionality, perfectly designed for families in Bradley County, Hamilton County, Polk County, and McMinn County. Spanning 2,678 square feet, this inviting home features three spacious bedrooms and two and a half well-appointed bathrooms, making it an ideal choice for comfortable living.
Upon entering The Meadow Creek, you’ll be greeted by a bright and open floor plan that effortlessly encourages connection and togetherness. The large covered front and rear porches offer inviting outdoor spaces to enjoy the beautiful Tennessee weather, perfect for morning coffee or evening entertaining. Inside, the cozy fireplaces add warmth and charm to both the living area and outdoor spaces, creating a welcoming ambiance year-round.
With vaulted and tray ceilings throughout, The Meadow Creek feels both expansive and airy. The thoughtfully designed kitchen features ample space. Perfect for cooking and gathering, alongside a walk-in pantry and a butler’s pantry that provide convenience and organization for all your culinary needs.
Convenience is key in this home, featuring a designated laundry room and an office space, ideal for managing daily activities and facilitating remote work. Large windows throughout ensure plenty of natural light, creating a bright atmosphere that enhances everyday living.
The luxurious master suite serves as a serene retreat, featuring a custom tile shower and a free-standing tub that invites relaxation. With his-and-hers closets, you’ll enjoy both style and practicality.
For those searching for their dream home in Bradley County, Hamilton County, Polk County, or McMinn County, The Meadow Creek is a remarkable option that perfectly blends modern farmhouse charm with everyday functionality.
Experience the welcoming allure of The Meadow Creek—your ideal family home awaits!