Floorplans – Griffin
- 4
- 2
- 2,150
- 2
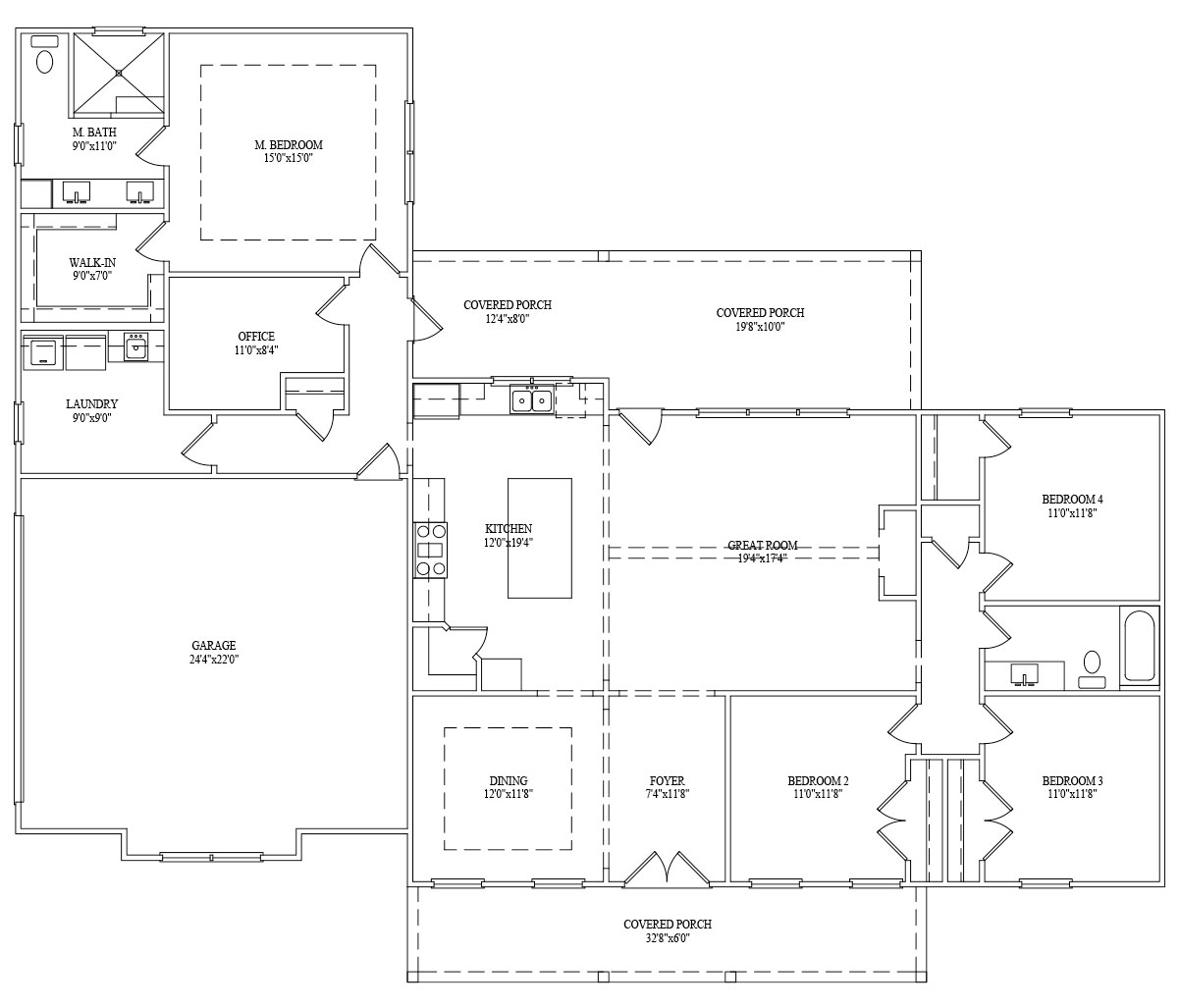
The Griffin — 4 Bed, 2 Bath Modern Farm House
Welcome to The Griffin: Your Ideal Home in Bradley, Hamilton, Polk, and McMinn Counties.
Introducing The Griffin, a stunning modern farmhouse that seamlessly combines elegance and functionality for families in Bradley County, Hamilton County, Polk County, and McMinn County. This spacious single-level home spans 2,150 square feet and features four comfortable bedrooms and two well-appointed bathrooms, making it an excellent choice for growing families.
As you step inside The Griffin, you’re greeted by a bright and open floor plan that effortlessly connects the living, dining, and kitchen areas. The inviting fireplace serves as the centerpiece of the living room, creating a cozy atmosphere perfect for evenings with loved ones. With vaulted and tray ceilings throughout, the home feels expansive and welcoming, allowing natural light to fill every corner.
One of the standout features of The Griffin is the large kitchen, perfect for the home chef. With generous counter space and a walk-in pantry, you’ll find it easy to whip up meals for family gatherings or entertaining friends. The convenient laundry room nearby adds to the functional layout.
The Griffin also includes a dedicated office space, ideal for those who work from home or need a quiet spot to focus. Step outside onto the spacious covered front and rear porches, providing ample opportunities to enjoy Tennessee’s beautiful weather—perfect for morning coffee or evening gatherings.
The luxurious master suite offers a private retreat, complete with a custom tile shower that adds a touch of elegance and relaxation. This thoughtfully designed home also features a two-car garage, ensuring convenience for families with multiple vehicles.
For those seeking their dream home in Bradley County, Hamilton County, Polk County, or McMinn County, The Griffin is a remarkable option that blends modern farmhouse charm with practical living. Experience a harmonious blend of space, style, and comfort with The Griffin.
