Floorplan – Callico

  • 3
  • 2
  • 1,290
  • N/A
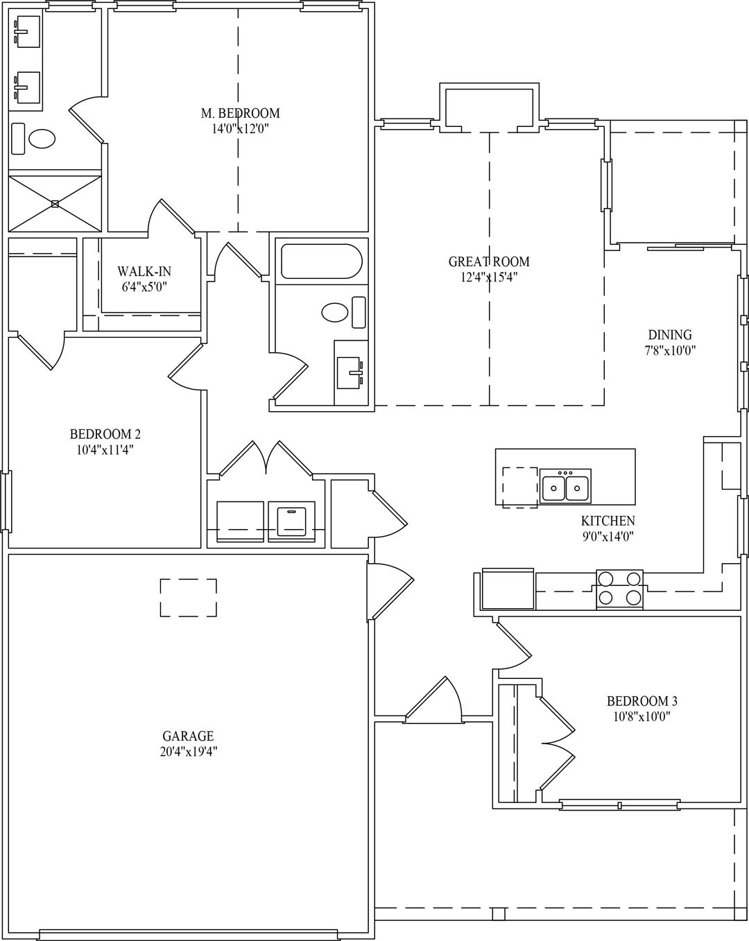
1.2 First Floor

The Callico — 3 Bed, 2 Bath Craftsman Bungalow

The Callico – Welcome home to the Callico, a beautifully crafted 1,290 sq ft single-level gem that blends classic Craftsman charm with modern family-friendly design. Thoughtfully arranged for easy living, this 3-bedroom, 2-bath home greets you with a covered front porch perfect for morning coffee and neighborly conversation. Inside, an open-concept great room invites abundant natural light through large windows, creating a warm, airy atmosphere where family life and entertaining flow effortlessly.

At the heart of the Callico, the kitchen shines with quartz countertops and a functional layout that makes meal prep and casual dining a delight. The open design keeps the cook connected to the living area—ideal for family nights, homework supervision, and hosting friends. A cozy electric fireplace anchors the living space, offering low-maintenance warmth and an inviting focal point for gatherings. Practical touches throughout the plan, including generous closet space and intelligently placed storage, keep daily life organized and clutter-free.

The primary suite is a private retreat, thoughtfully positioned for quiet and comfort with an en-suite bath designed for convenience. Two additional bedrooms provide flexible space for children, guests, or a home office—perfect for first-time buyers, growing families, or downsizers seeking single-level ease. Each bathroom is appointed with modern finishes and function in mind.

Outdoor living is celebrated with both covered front and rear porches, extending your living space and creating charming spots for relaxation, grilling, or watching the seasons change. The two-car garage offers secure parking and extra storage—an important convenience for busy family life.

Designed in authentic Craftsman style, the Callico’s exterior features architectural details and welcoming curb appeal that fit beautifully in a variety of neighborhoods. Whether you’re exploring homes in Bradley County, Hamilton County, Polk County, or McMinn County, the Callico delivers a perfect blend of style, comfort, and smart design.

This home is an ideal choice for families and first-time buyers looking for manageable maintenance, thoughtful living spaces, and timeless character—or downsizers searching for a cozy, single-level floor plan without sacrificing style. 

Come see how effortless everyday living can be in the Callico.